198126:新築戸建 南区神明3期 全1棟
| 価格 | 8,499万円 |
|---|---|
| 所在地 | さいたま市南区神明2丁目 |
| 交通 | 京浜東北線 南浦和駅まで 徒歩12分 JR埼京線 武蔵浦和駅まで 徒歩17分 京浜東北線 浦和駅まで 徒歩19分 |
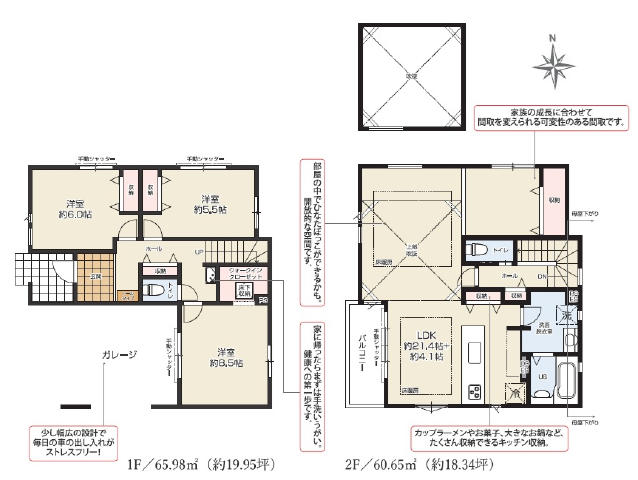
| 間取 | 3LDK |
| 土地面積 | 97.98m²(29.63坪) |
| 建物面積 | 126.63m²(38.3坪) |
| 私道面積 | - |
| 築年月 | |
| 学区 | 小学校区:高砂小 1,300m 中学校区:岸中 600m |
| 建物構造 | 木造 |
|---|---|
| 階建 | 地上2階建 |
| 建ぺい率 | 70% |
| 容積率 | 160% |
| 地目 | 宅地 |
| 用途地域 | 第二種中高層住居専用地域 |
| 土地権利 | 所有権 |
| 取引態様 | 仲介 |
| 引渡時期 | 相談 |
| セットバック | |
|---|---|
| 接道 | 西 4m(幅員) 公道 北 4m(幅員) 公道 |
| 諸費用 | |
| 他法条例 | |
| 建築確認番号 | 第25UDI1W05776号 |
| 取引条件有効期限 | 令和08年5月28日 |
特色
駐車場、公共本下水、都市ガス
コメント
スギ薬局浦和神明店約350m・オーケー武蔵浦和店約650m・ファミリーマートさいたま白幡店約550m。
周辺地図
位置情報に関するご注意:現在位置情報は精査中の為、正確ではない場合があります。あくまで参考程度の情報となります。











